Amenities
- Property ID: DES18D3
- Property Status: For Sale
- Price: $518100
- Land Area: -㎡
- Floor Area: 157㎡
- Living Areas: 1
- Bedrooms: 4
- Bathrooms: 2
- Garages: 2
- Pool: No
- Solar Built In: No
- Year Built: -
Features
- Bosch appliances
- Stone bench
- Lawn seed
- Laminate flooring
- Yale Digital lock
- Earthworks included
- Drainage WW, SW included
- 80m2 Standard Concrete
- Power mains included
- Carpet
- Tiles in wet areas
- Retention detention tank
- Double drawer 900 vanity
- Windsor Hardware
- Hag 11 doors
- Shower rain head
- Bathroom storage tower
- LED Lights
- 600 x 600 tiles
- Tile or glass splash-back
- PDL switches and plugs
- Bricks
- Weatherboard
Description
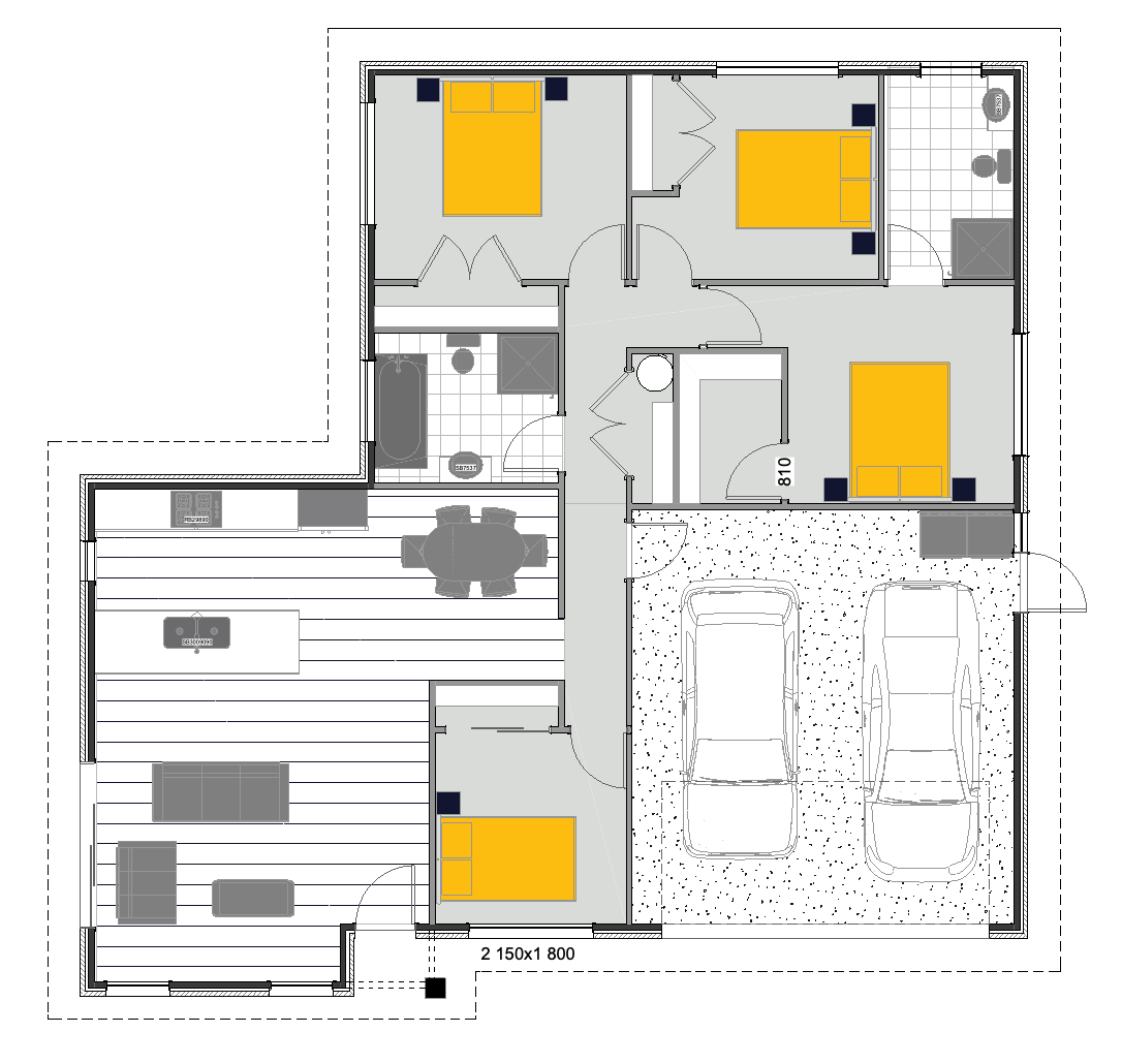
Introducing a stunning and modern 4-bedroom, 2-bathroom house design that is sure to impress. With a spacious floor area of 157 square meters, this home offers ample space for comfortable living.
As you enter the house, you are greeted by a stylish living area, perfect for entertaining guests or relaxing with your family. The open plan design allows for seamless flow between the living, dining, and kitchen areas, creating a sense of unity and connectivity. The kitchen is equipped with high-quality appliances and ample storage space, making it a chef's dream.
The house features four well-appointed bedrooms, providing plenty of space for a growing family or accommodating guests. The master bedroom boasts a luxurious ensuite bathroom, offering a private sanctuary for relaxation. The remaining bedrooms are spacious and bright, with built-in wardrobes for added convenience.
For those with a love for cars, the house includes a double garage with enough space for two vehicles. This provides secure parking and additional storage space.
The design of this house is sleek and contemporary, with clean lines and modern finishes. The large windows allow for an abundance of natural light to flood the interiors, creating a bright and airy atmosphere. The neutral color palette throughout the house provides a timeless and elegant aesthetic.
Although not featured in the images, this house has the potential for additional features such as decks, pools, solar power, and various roof and wall materials. These options allow you to customize the design to suit your personal preferences and lifestyle.
Overall, this house design offers a perfect blend of style, functionality, and comfort. It is a place where you can create lasting memories and enjoy a modern and convenient lifestyle.







