Amenities
- Property ID: DES19AE
- Property Status: For Sale
- Price: $651750
- Land Area: -㎡
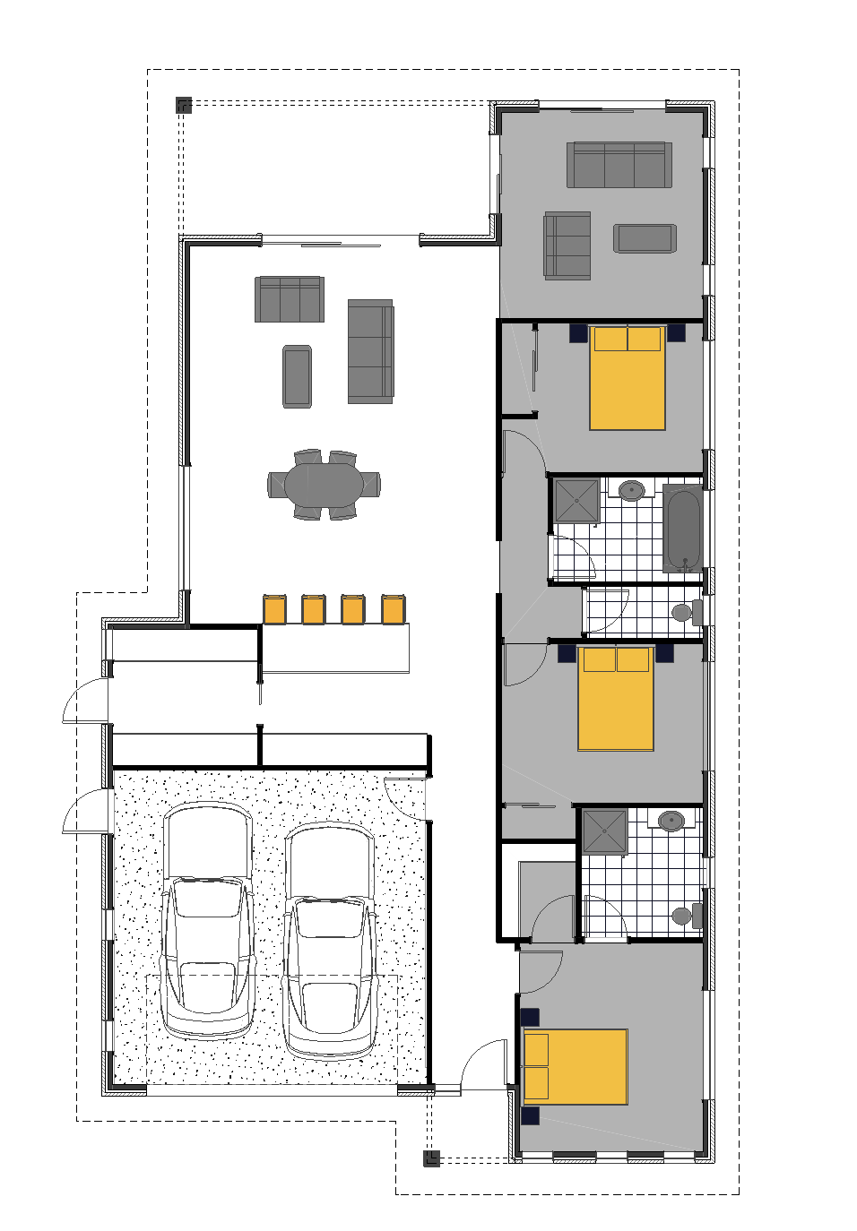
- Floor Area: 197.5㎡
- Living Areas: 2
- Bedrooms: 4
- Bathrooms: 2
- Garages: 2
- Pool: No
- Solar Built In: No
- Year Built: -
Features
- Bosch appliances
- Stone bench
- Laminate flooring
- Yale Digital lock
- Earthworks included
- Drainage WW, SW included
- 80m2 Standard Concrete
- Power mains included
- Windsor Hardware
- Hag 11 doors
- Shower rain head
- LED Lights
- 600 x 600 tiles
- PDL switches and plugs
- Double drawer 900 vanity
- Bathroom storage tower
- Ensuite
- Walk-in Wardrobe
- Tiles in wet areas
- Carpet
- Separate Toilet
- Bricks
- Weatherboard
- Open Plan Living
- Covered Porch
Description
Introducing an exquisite four-bedroom residence that effortlessly combines modern elegance with functional design, encompassing a spacious 197.5 m² of thoughtfully planned living space. This stunning home showcases dual living areas, providing ample room for both relaxation and entertainment, while its two well-appointed bathrooms and an ensuite elevate everyday comfort and convenience.
The open-plan living concept seamlessly integrates the kitchen, dining, and lounge spaces, enriched by the sleek stone benchtops and premium Bosch appliances that inspire culinary creativity. Laminate flooring throughout the main areas adds warmth and durability, complemented by plush carpeting in the bedrooms for cozy retreats.
Attention to detail is evident in every element, from the Yale digital lock ensuring enhanced security to the sophisticated Windsor hardware and Hag 11 doors that add subtle refinement. The bathrooms feature luxurious 600 x 600 tiles, rain showerheads, double drawer 900mm vanities, and dedicated storage towers, while wet areas benefit from quality tiling and separate toilet facilities for added practicality.
The exterior harmoniously blends classic brick and weatherboard finishes, with a covered porch inviting you into this elegant home. Additional thoughtful inclusions such as LED lighting, PDL switches and plugs, earthworks, drainage, and power mains installation contribute to a hassle-free living experience.
With a double garage providing ample parking and storage solutions, this residence offers a perfect balance of style, comfort, and functionality—ideal for families seeking a contemporary home designed for modern living.







