Amenities
- Property ID: LIS4E74
- Property Type: House & Land
- Property Status: Sold
- Price: $3178263
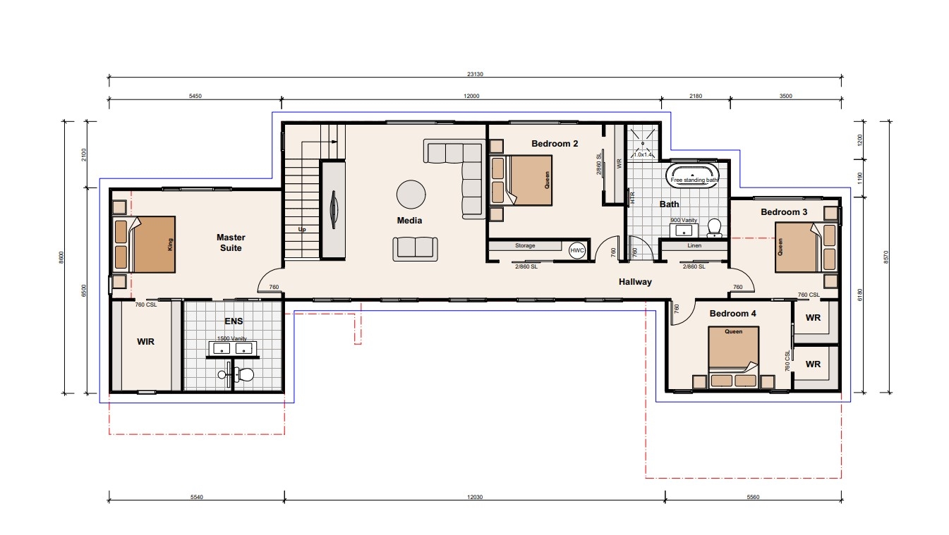
- Land Area: 524㎡
- Floor Area: 302㎡
- Living Areas: 2
- Bedrooms: 4
- Bathrooms: 2
- Garages: 2
- Pool: No
- Solar Built In: No
- Year Built: -
Features
- Double glazing
- Double garage
- Ensuite
- Walk-in-wardrobe
- Walk-in-Pantry
- Recessed LED lighting
Description
DESIGN & BUILD IN THE HEART OF EPSOM
Become the next custodian and secure yourself a piece of paradise at the prestigious Almorah Glades.
Bespoke Design & Build house and land package includes an enviable specification and the latest build methodology. Resource Consented exterior plans have been secured to enhance the environment and your investment. Set amongst a canopy of mature trees this sun dappled site is sure to please.
Includes:
Building Consent
Earthworks
Scullery
Engineered stone bench top
Double Glazing Throughout
Master Builders 10 year Guarantee
12 Months Defects Maintenance Period
LED lighting
Custom designed kitchen with granite or engineered stone bench tops
Double glazing
Price shown includes house and land, but is subject to terms, conditions and excludes additional siteworks/foundation costs above standard allowances unless otherwise stated. Images and photos are examples only.
Contact: Dianne Strange 022 312 5907
Please consult your local Sentinel Homes office for more information and a list of inclusions and exclusions.
*Listing subject to availability.













