Amenities
- Property ID: LIS5167
- Property Type: House & Land
- Property Status: For Sale
- Price: $974000
- Land Area: 600㎡
- Floor Area: 150㎡
- Living Areas: 2
- Bedrooms: 3
- Bathrooms: 2
- Garages: 2
- Pool: No
- Solar Built In: No
- Year Built: -
Features
- Double garage
- Double glazing
- Heat pump
- Ensuite
- Walk-in-wardrobe
- Walk-in-Pantry
- Separate laundry
- Separate Toilet
- Open living
Description
Step into beachside paradise, where every element has been meticulously crafted to offer you the quintessential coastal living experience. With its stunning mono pitch roof and eye-catching board and batten cladding, this residence exudes a timeless charm that perfectly complements its idyllic location.
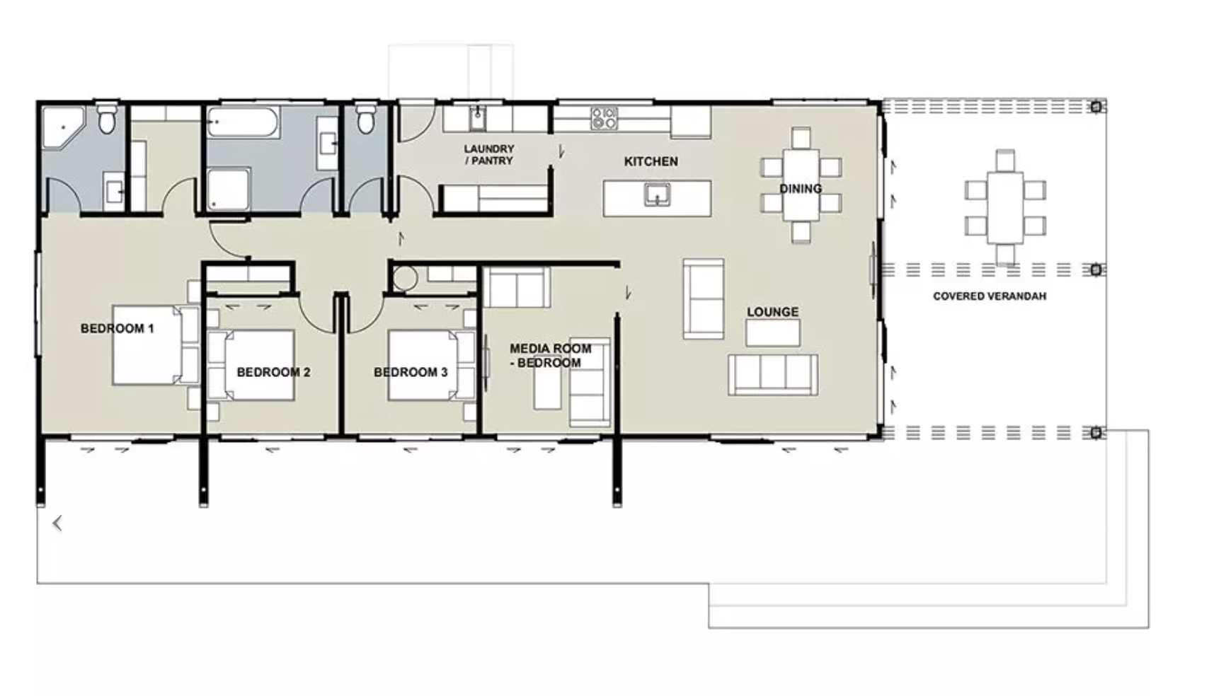
Featuring 3 bedrooms and 2.5 bathrooms, including a luxurious ensuite, walk-in wardrobe, and a walk-through scullery and laundry, this home effortlessly combines functionality with modern design. The open plan kitchen, living, and dining room create a welcoming space for entertaining guests or simply relaxing with loved ones after a day of sun-soaked adventures.
Nestled just outside of Pauanui, a stunning new neighborhood awaits you at Pinehurst Drive. Set alongside the prestigious Lakes Resort Golf Course, this idyllic location offers the perfect blend of relaxation and beach town living. Imagine waking up to the soothing sound of rolling waves and basking in the warm sunshine as you embrace the vibrant coastal lifestyle.
With a recreation center just moments away, you’ll have access to a world-class gym, refreshing pool, and pristine tennis courts. Whether you’re seeking an invigorating workout or a leisurely game with friends, your options for active living are endless. Need a quick caffeine fix or a bite to eat? Look no further than the delightful café just a stone’s throw away, ensuring that every morning starts with a delightful cup of coffee or a delicious meal.
Contact us to hear how we can turn your beach home get away into a reality











