Amenities
- Property ID: DES1641
- Property Status: For Sale
- Price: $
- Land Area: -㎡
- Floor Area: 141㎡
- Living Areas: 1
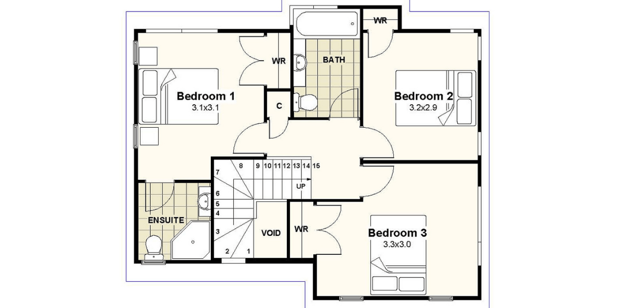
- Bedrooms: 4
- Bathrooms: 3
- Garages: 1
- Pool: No
- Solar Built In: No
- Year Built: -
Description
3 bedrooms
3 bathrooms - one main en-suite
Open plan, kitchen, living, dining
Double internal access garage
See More ![Down arrow icon]()
Floor plan
0 / 2









